煙氣在線分析儀廠家排名情況
文章出處:南京艾伊科技有限公司 人氣:-發表時間:2022-09-06 09:44:00
煙氣在線分析儀既可以在線檢測氣體的濃度值,還可以檢測煙道粉塵的濃度,在工況環境中發揮著重要作用。若是討論煙氣在線分析儀廠家排名情況,那得從下面幾點標準來衡量,我們一起來看看吧。
煙氣在線分析儀廠家排名衡量
1、作為煙氣在線分析儀,首先得滿足既能檢測氣體濃度值,也能檢測煙塵濃度值;
2、檢測氣體時,需要有氣體預處理系統,好的氣體預處理系統可以延長探頭的壽命。檢測煙塵時,也要有采樣探頭的反吹系統,這樣可以去除一些干擾因素;
3、要有耐高溫的設計,因為實際的工況環境會比較惡劣;
4、支持實時數據、實時曲線,4-20mA/RS485等標準輸出信號,支持數據上傳。
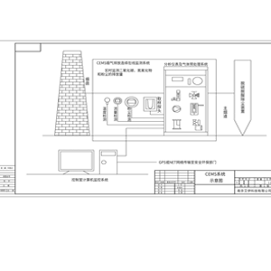
艾伊科技公司的煙氣連續在線分析系統流程圖

另外還有產品配件的質量等問題,只有將這些標準進行分析比較,才能得出一個較為公正的煙氣在線分析儀廠家排名情況。目前來說,并沒有一個公認的排名表,每個廠家都有自己主打的產品亮點。小編推薦南京艾伊科技有限公司,該公司從事氣體檢測,氣體分析,煙氣連續監測系統行業已經有14余年。公司秉承“科技創新,筑造精品”的理念,堅持自主研發生產,并積極開拓海外市場。截至目前,產品已覆蓋全球57個國家,贏得良好口碑。
南京艾伊科技一體化解決方案和氣體檢測分析儀,粉塵檢測儀,氣體檢測報警儀,氧含量分析儀,可燃氣體檢測儀等.生產,銷售,研發,售后一條龍科技服務商. 咨詢熱線:400-025-9821
此文關鍵字:氣體檢測分析儀,粉塵檢測儀,氣體檢測報警儀,氧含量分析儀,可燃氣體檢測儀
同類文章排行
- 原位對射式激光氧分析儀,如何破解燃燒設備尾部煙道監測難題?
- 防爆對射式激光氧分析儀,如何破解高溫高壓工況監測難題?
- 無線式氣體報警儀,如何筑牢煉鋼轉爐煤氣安全防線?
- 便攜式礦井氣體檢測儀如何成為井下安全“守護神”?
- 熱導分析儀如何精準護航空分、氨化與加氫裝置?
- 便攜式氣體報警器:守護安全,隨行無憂的必備神器?
- 粉塵隱患如何破?管道粉塵泄露檢測儀為您解憂!
- 空分行業必備:在線氣體分析儀如何化身“智慧之眼”?
- 氣體探測報警系統怎么選?專業廠家揭秘GDS系統優勢
- 氣體探測報警系統:可燃與有毒氣體的安全衛士
最新資訊文章
您的瀏覽歷史






